Studio mAAb

Vue extérieure du jardin. Rénovation d’une maison individuelle à Saint-Malo.

Rénovation d’une maison individuelle à Saint-Malo

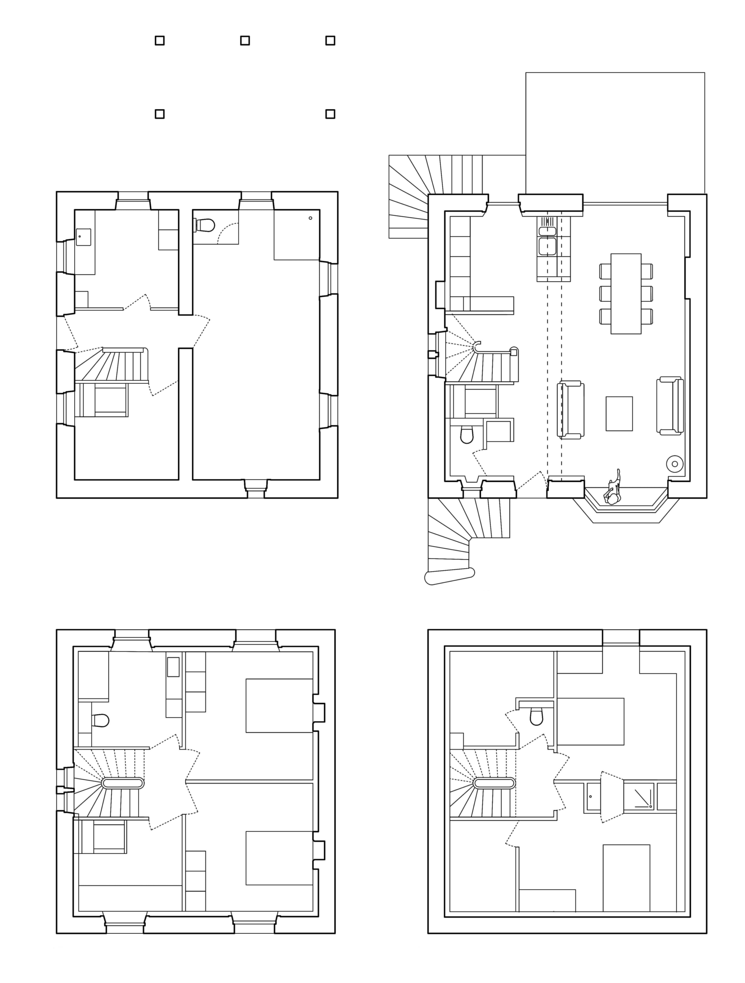
La maison est entièrement rénovée. L’ensemble a été mis à nu afin de révéler les éléments existants comme les mosaïques et les planchers en bois. Les pièces de vie sont au premier étage. Côté jardin, les allèges sont déposées, et une large terrasse est créée afin de profiter de l’espace extérieur. Une poutre IPN permet d’ouvrir complètement l’espace de vie dans toute sa largeur.
Le rez-de-chaussée est un espace technique accueillant le retour de plage et la buanderie. Le 1er étage et les combles sont dédiés aux espaces de nuit. L’ensemble des menuiseries a été remplacé à l’identique.

Localisation/ Saint-Malo

Mission / Complète

Commande / Privée

État / Livré

Année / 2019

Images / ©Cyril Folliot

Façade. Rénovation d'une maison individuelle à Saint-Malo.
Vue extérieure du jardin. Rénovation d’une maison individuelle à Saint-Malo.
Vue de la cuisine. Rénovation d’une maison individuelle à Saint-Malo.
Détail du carrelage de la cuisine. Rénovation d’une maison individuelle à Saint-Malo.
Escalier. Rénovation d'une maison individuelle à Saint-Malo.
Vue intérieure. Rénovation d'une maison individuelle à Saint-Malo.
Rénovation d'une maison individuelle à Saint-Malo
Salle de bain. Rénovation d'une maison individuelle à Saint-Malo.
Vue de la cuisine. Rénovation d’une maison individuelle à Saint-Malo.
Sketch. Rénovation d'une maison individuelle à Saint-Malo.
Sketch. Rénovation d'une maison individuelle à Saint-Malo.
Plan des façades. Rénovation d’une maison individuelle à Saint-Malo.
Plan des façades. Rénovation d’une maison individuelle à Saint-Malo.
Plans. Rénovation d'une maison individuelle à Saint-Malo.
Photo ancienne de la maison existante. Rénovation d’une maison individuelle à Saint-Malo.