Studio mAAb

VIGNETTE - compressed

Construction d’une maison neuve à Saint-Malo

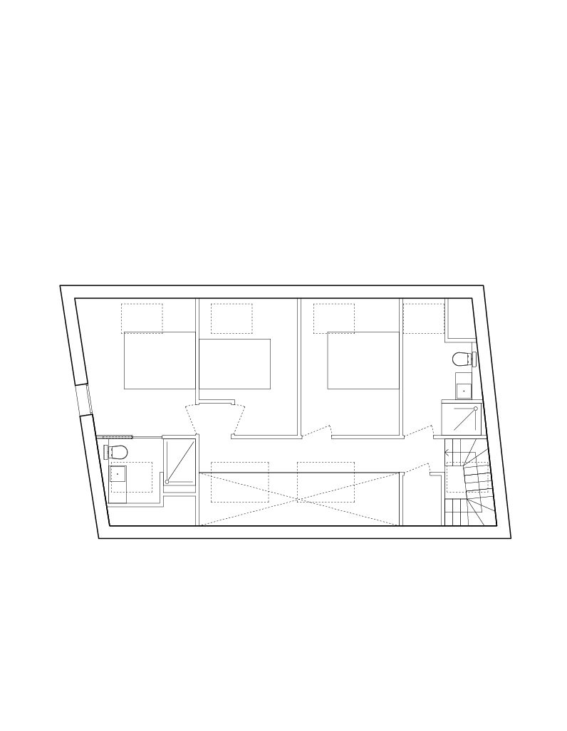
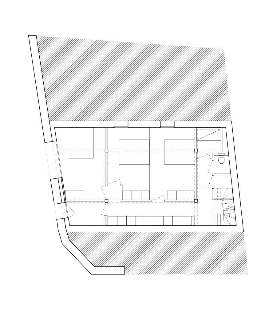
Le projet d’agrandissement de la maison n’étant pas envisageable au vu de l’état de la structure existante, la maison d’origine a dû être démolie. Seul le mur maçonné sur rue a été conservé. Ce dernier a guidé le dessin des façades de la maison neuve. La maison est simple dans son volume, elle reprend le gabarit des maisons traditionnelles avec une toiture en double pente.
Il s’agit d’un système plancher béton avec une enveloppe en mur ossature bois et une isolation en bio sourcé. La couverture est en ardoise.
A l’intérieur, les matériaux sélectionnés sont sobres et de qualité. Un espace en double hauteur permet un apport naturel et généreux de lumière dans l’espace de vie. Une grande lucarne au dernier étage permet d’apprécier une vue sur mer.

Localisation/ Saint-Malo

Mission / Complète

Commande / Privée

État / Livré

Année / 2025

Images / ©Francois Baudry

2025_0225-MAAB-Maison_Goelands_Rotheneuf-©francoisbaudry-6237-2-web copia
2025_0225-MAAB-Maison_Goelands_Rotheneuf-©francoisbaudry-6255-web
G2025_0225-MAAB-Maison_Goelands_Rotheneuf-©francoisbaudry-6223-web
A 2025_0225-MAAB-Maison_Goelands_Rotheneuf-©francoisbaudry-6184-web
B 2025_0225-MAAB-Maison_Goelands_Rotheneuf-©francoisbaudry-6191-web
C 2025_0225-MAAB-Maison_Goelands_Rotheneuf-©francoisbaudry-6201-web copia
F2025_0225-MAAB-Maison_Goelands_Rotheneuf-©francoisbaudry-6175-web
E2025_0225-MAAB-Maison_Goelands_Rotheneuf-©francoisbaudry-6217-web
D2025_0225-MAAB-Maison_Goelands_Rotheneuf-©francoisbaudry-6215-web
PLANCHES GRAPHIQUES_A2113 01
PLANCHES GRAPHIQUES_A2113 02
PLANCHES GRAPHIQUES_A2113 03
PLANCHES GRAPHIQUES_A2113 04
PLANCHES GRAPHIQUES_A2113 05
PLANCHES GRAPHIQUES_A2113 06
existant