Studio mAAb

Façade. Rénovation d’une maison à Dinard.

Rénovation d’une maison à Dinard

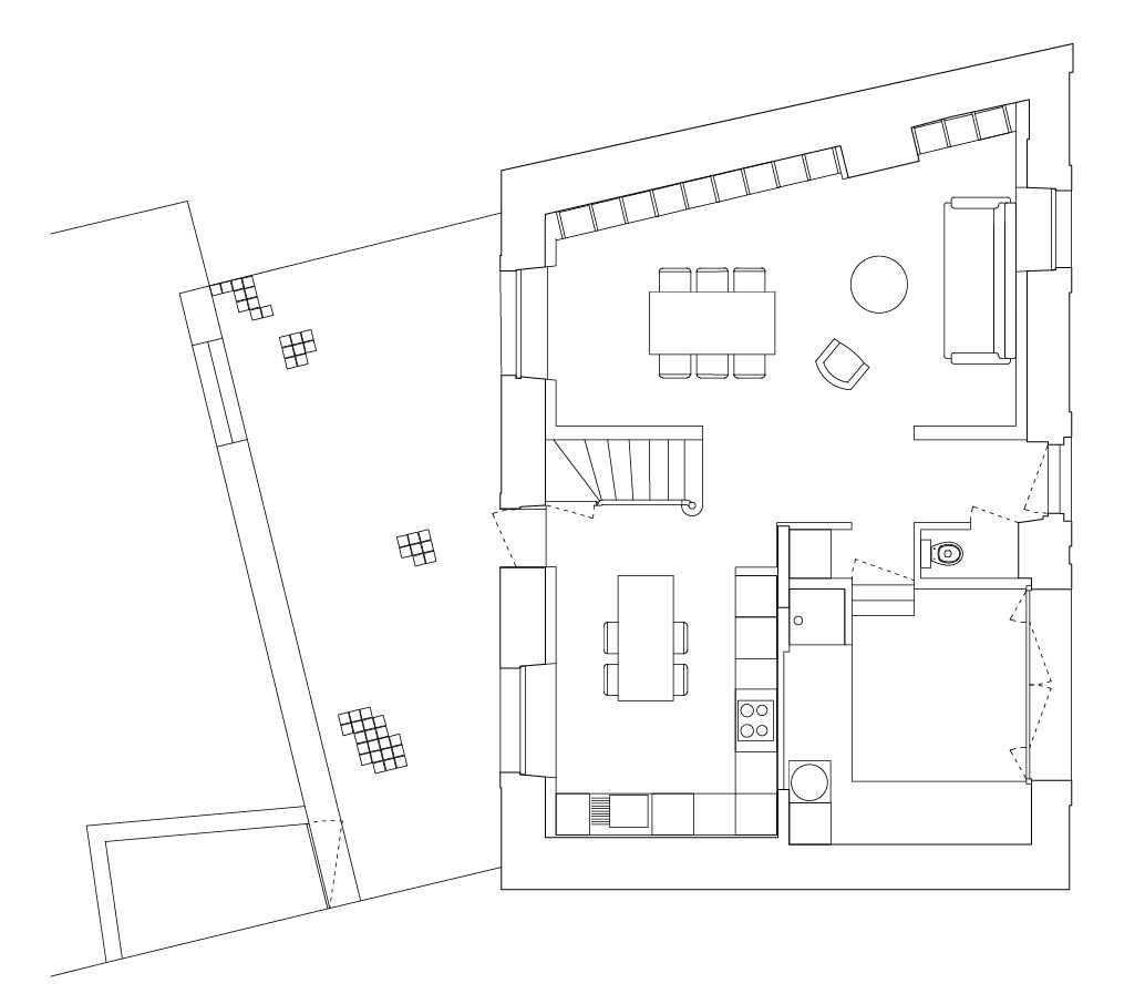
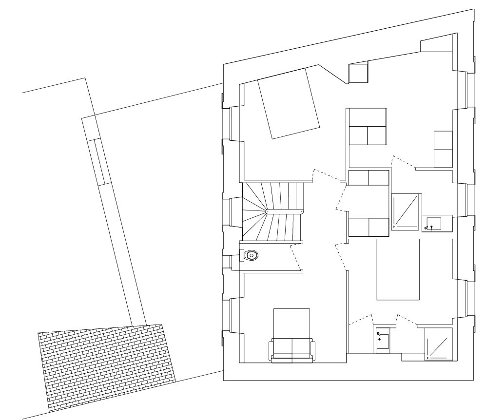
Située à Dinard, à proximité de la mer, cette maison en moellon de pierre a été entièrement rénovée. Localisée en secteur classé, nous avons travaillé la façade en élargissant les ouvertures existantes afin d’apporter un maximum de lumière à l’intérieur de la maison. La pièce de vie en rez-de-chaussée a été décloisonnée et ouverte sur le jardin. Les pièces de nuit, à l’étage, profitent d’une belle luminosité et d’une vue sur jardin ou sur mer. Les finitions choisies sont naturelles et claires. La maison a été entièrement isolée, les menuiseries ont été remplacées, les joints de pierre en ciment ont été piqués, et un système de ventilation performant a été intégré afin de permettre une bonne gestion hygrothermique et donc une véritable sensation de confort.

Localisation/ Dinard

Mission / Complète

Commande / Privée

État / Livré

Année / 2022

Images / ©Cyril Folliot

Vue extérieure. Rénovation d’une maison à Dinard.
Salon. Rénovation d’une maison à Dinard.
Vue intérieure. Rénovation d’une maison à Dinard.
Cuisine. Rénovation d’une maison à Dinard.
Vue intérieure. Rénovation d’une maison à Dinard.
Escalier. Rénovation d’une maison à Dinard.
Chambre. Rénovation d’une maison à Dinard.
Vue extérieure. Rénovation d’une maison à Dinard.
PLANCHES GRAPHIQUES_A2110 01
PLANCHES GRAPHIQUES_A2110 02
PLANCHES GRAPHIQUES_A2110 03
PLANCHES GRAPHIQUES_A2110 04
Photo ancienne de la maison existante. Rénovation d’une maison à Dinard.