Studio mAAb

2025_0417-MAAB-Maison_butte-Rotheneuf-©francoisbaudry-7796-hd

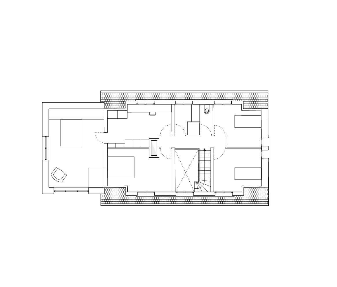
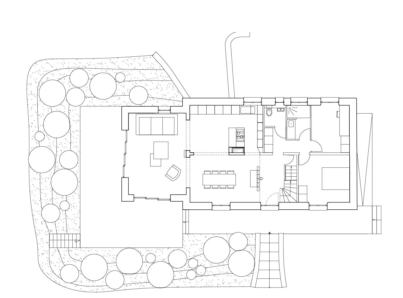
Rénovation et extension en paille d’une maison à Saint-Malo

Cette ancienne maison néo-bretonne a été entièrement isolée par l’extérieur et bardée de bois huilé noir. Une extension en caissons de paille, enduits intérieurs en terre a été créé sur le pignon sud. La construction en paille permet une très bonne gestion de l’humidité et garantie un excellent confort thermique. Les caissons ont été préfabriqués en atelier, puis montés sur place.
Cette extension sur le pignon sud permet à la fois de créer de large ouverture pour un meilleur apport de lumière, tout en offrant une vue sur la mer. Une grande attention a été portée sur l’existant : le sol en terrazzo a été conservé et les matériaux choisis sont naturels et chaleureux (enduit terre, bois, mosaïque colorée, liège …). La terrasse extérieure est en béton quartzé, participant à la sobriété de l’extérieur et établissant un lien avec le terrazzo intérieur. La cuisine a été entièrement dessinée par nos soins et réalisée en chêne avec un menuisier intérieur. Les menuiseries sont en alu à l’extérieur et en bois à l’intérieur, s’harmonisant avec la sobriété extérieure et la chaleur intérieure recherchées.

Localisation/ Saint-Malo

Mission / Complète

Commande / Privée

État / Livré

Année / 2024

Images / ©Francois Baudry

2025_0417-MAAB-Maison_butte-Rotheneuf-©francoisbaudry-7768-hd
2025_0417-MAAB-Maison_butte-Rotheneuf-©francoisbaudry-7783-hd
2025_0417-MAAB-Maison_butte-Rotheneuf-©francoisbaudry-7780-hd
2025_0417-MAAB-Maison_butte-Rotheneuf-©francoisbaudry-7808-hd
2025_0417-MAAB-Maison_butte-Rotheneuf-©francoisbaudry-7824-hd
2025_0417-MAAB-Maison_butte-Rotheneuf-©francoisbaudry-7744-hd
2025_0417-MAAB-Maison_butte-Rotheneuf-©francoisbaudry-7816-hd
2025_0417-MAAB-Maison_butte-Rotheneuf-©francoisbaudry-7749-hd
2025_0417-MAAB-Maison_butte-Rotheneuf-©francoisbaudry-7827-hd
2025_0417-MAAB-Maison_butte-Rotheneuf-©francoisbaudry-7746-hd
PLANCHES GRAPHIQUES_A2301 01
PLANCHES GRAPHIQUES_A2301 02
PLANCHES GRAPHIQUES_A2301 03
PLANCHES GRAPHIQUES_A2301 04
A2301 - EXISTANT
A2301 - EXISTANT2