Studio mAAb

2025_0417-MAAB-Renovation_Maison-Saint_Malo-©francoisbaudry-7891-hd
2025_0417-MAAB-Renovation_Maison-Saint_Malo-©francoisbaudry-7722-hd

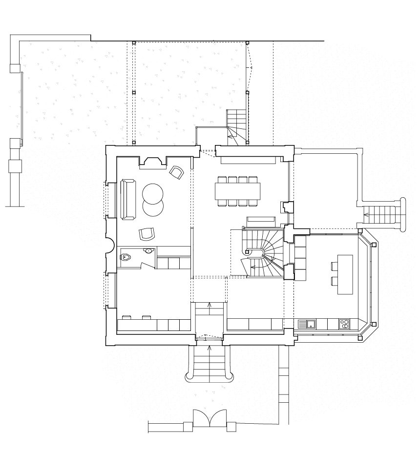
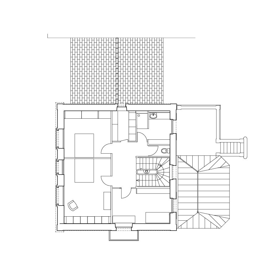
Rénovation d’une maison à Saint-Malo

Cette maison a été entièrement remaniée en intérieur et certaines ouvertures extérieures ont été élargies afin de permettre un apport de lumière plus conséquent. L’intérieur de la maison, autrefois très cloisonné, a été très largement ouvert et a nécessité de nombreuses reprises structurelles. Des poutres acier ont alors été intégrées en harmonie avec la disposition des caissons de plafond. La cuisine, pièce centrale de la maison, a été déplacée dans l’espace vitré baigné de lumière et accessible depuis le jardin. En extérieur, les joints en pierre ainsi que les éléments de serrurerie ont été refaits afin de permettre une bonne gestion de l’hygrométrie du bâtiment, ainsi que pour des raisons esthétiques. À l’étage, les pièces ont été très peu remaniées : les espaces ont été repeints et les salles de bain ont été revêtues de mosaïques.

Localisation/ Saint-Malo

Mission / Complète

Commande / Privée

État / Livré

Année / 2024

Images / ©Francois Baudry

2025_0417-MAAB-Renovation_Maison-Saint_Malo-©francoisbaudry-7720-hd
2025_0417-MAAB-Renovation_Maison-Saint_Malo-©francoisbaudry-7900-hd
2025_0417-MAAB-Renovation_Maison-Saint_Malo-©francoisbaudry-7841-hd
2025_0417-MAAB-Renovation_Maison-Saint_Malo-©francoisbaudry-7851-hd
2025_0417-MAAB-Renovation_Maison-Saint_Malo-©francoisbaudry-7845-hd
2025_0417-MAAB-Renovation_Maison-Saint_Malo-©francoisbaudry-7879-hd
2025_0417-MAAB-Renovation_Maison-Saint_Malo-©francoisbaudry-7878-hd
2025_0417-MAAB-Renovation_Maison-Saint_Malo-©francoisbaudry-7869-hd
2025_0417-MAAB-Renovation_Maison-Saint_Malo-©francoisbaudry-7868-hd
PLANCHES GRAPHIQUES_A2103 01
PLANCHES GRAPHIQUES_A2103 02
PLANCHES GRAPHIQUES_A2103 03
PLANCHES GRAPHIQUES_A2103 04
PLANCHES GRAPHIQUES_A2103 05
PLANCHES GRAPHIQUES_A2103 06
A2103 - EXISTANT B
A2103 - EXISTANT