Studio mAAb

Maquette. Création d'un gîte intercommunal à Josselin.

création de Gite intercommunale à Josselin avec Atelier 56s

750m2 / 1 800 000€

MO : Ploërmel Communauté

MOE Architectes : Atelier 56S (mandataire) + studio mAAb – La Plage architecture et paysage (Guillaume Derrien) + ECB (BET TCE)+ Acoustibel (BE Acoustique)

Localisation / Josselin

Mission / Partielle

Commande / Publique

État / En cours

Année / 2018

Images / ©

Maquette. Création d'un gîte intercommunal à Josselin.
Elevation. Création d'un gîte intercommunal à Josselin.
Elevation. Création d'un gîte intercommunal à Josselin.
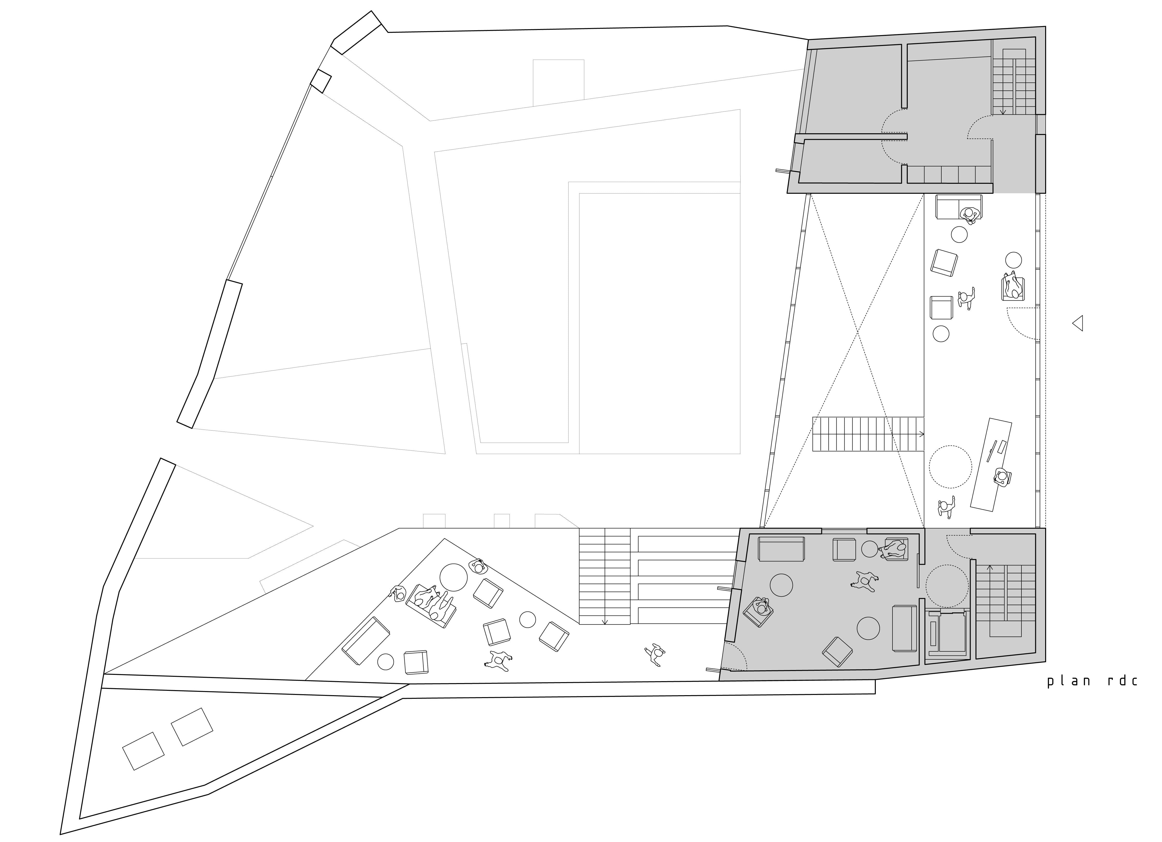
Plan RDC. Maquette. Création d'un gîte intercommunal à Josselin.
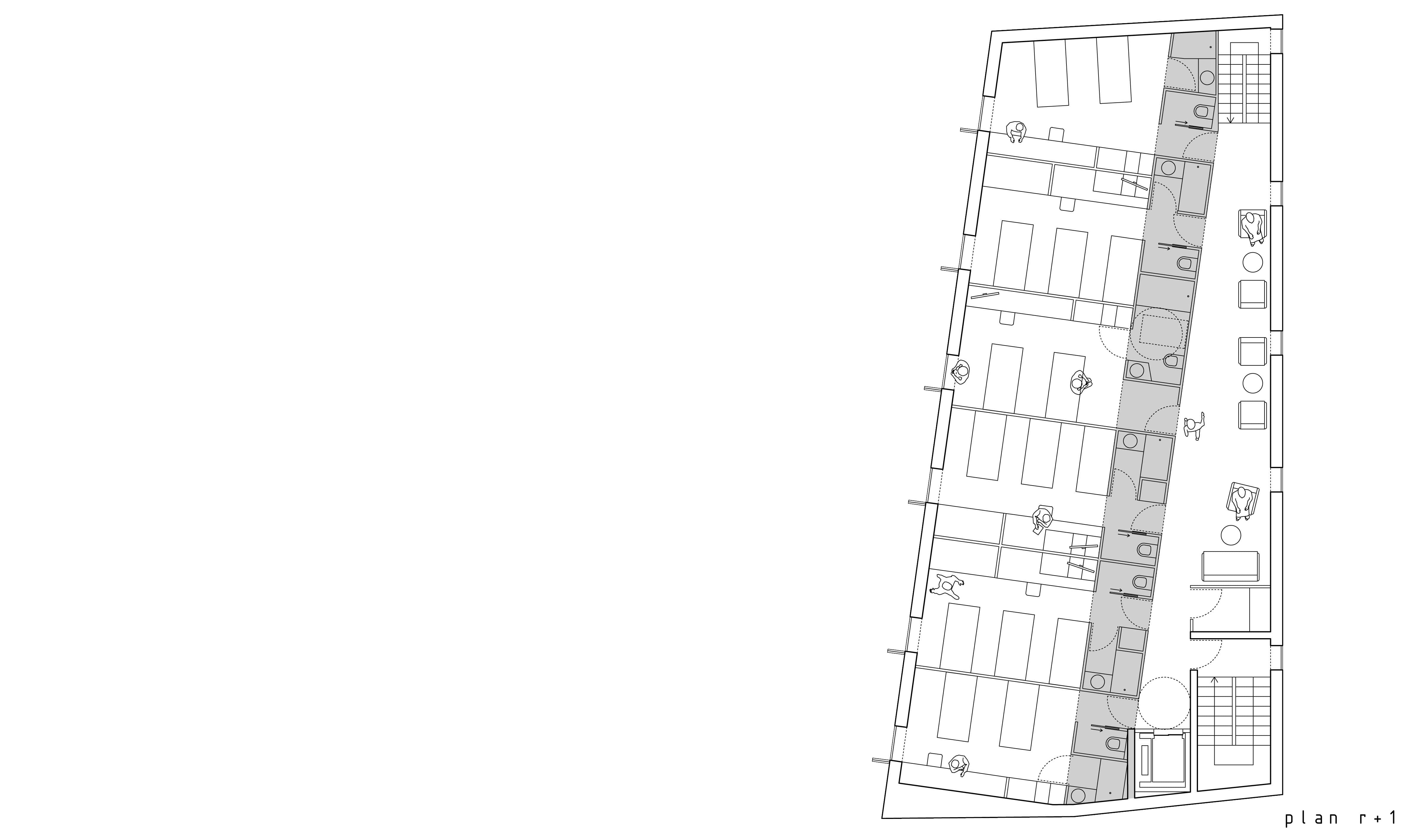
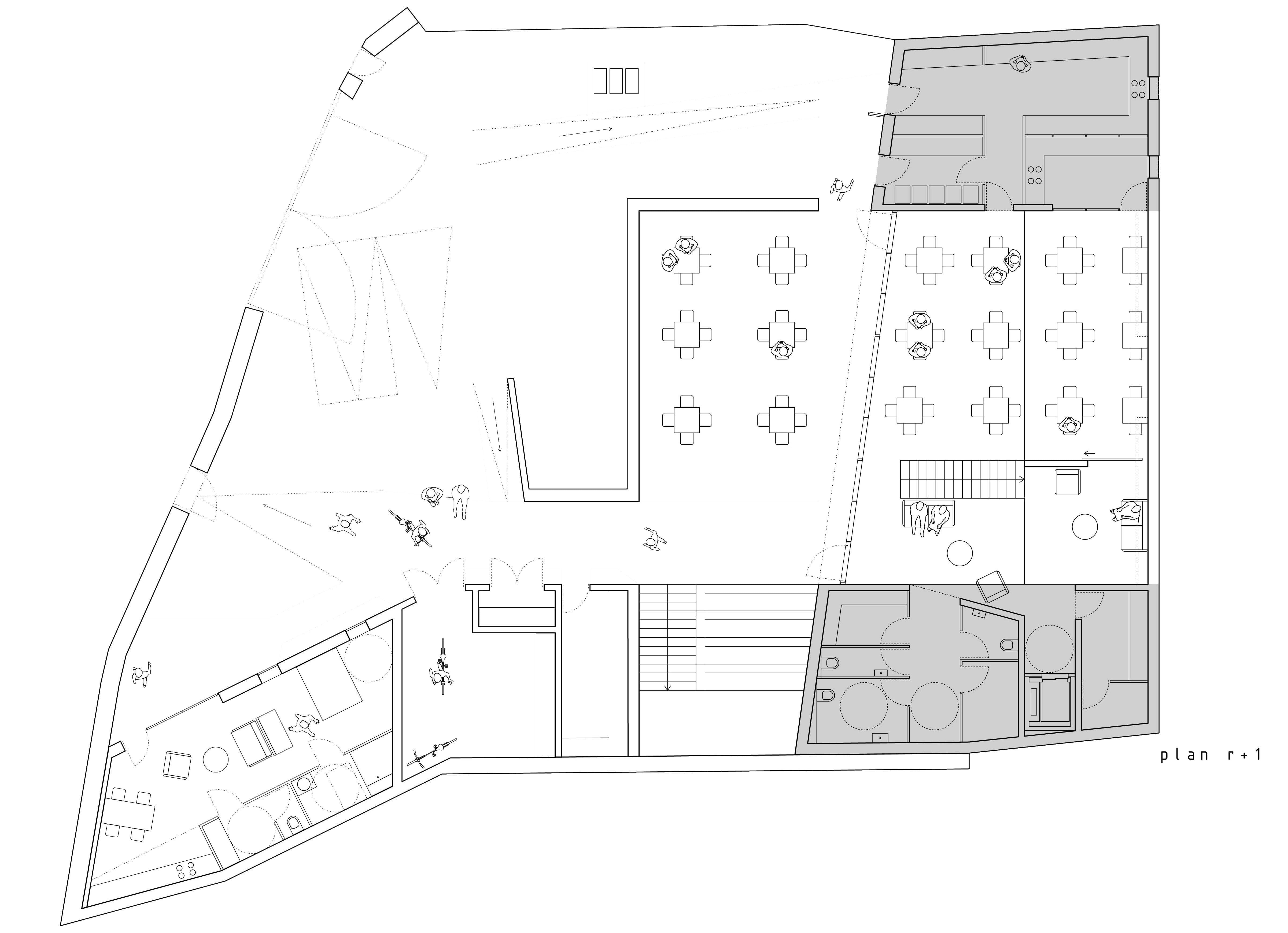
Plan R+1. Création d'un gîte intercommunal à Josselin.
Plan R+1. Création d'un gîte intercommunal à Josselin.