Studio mAAb

Vue intérieure. Création d'un duplex à Rennes.

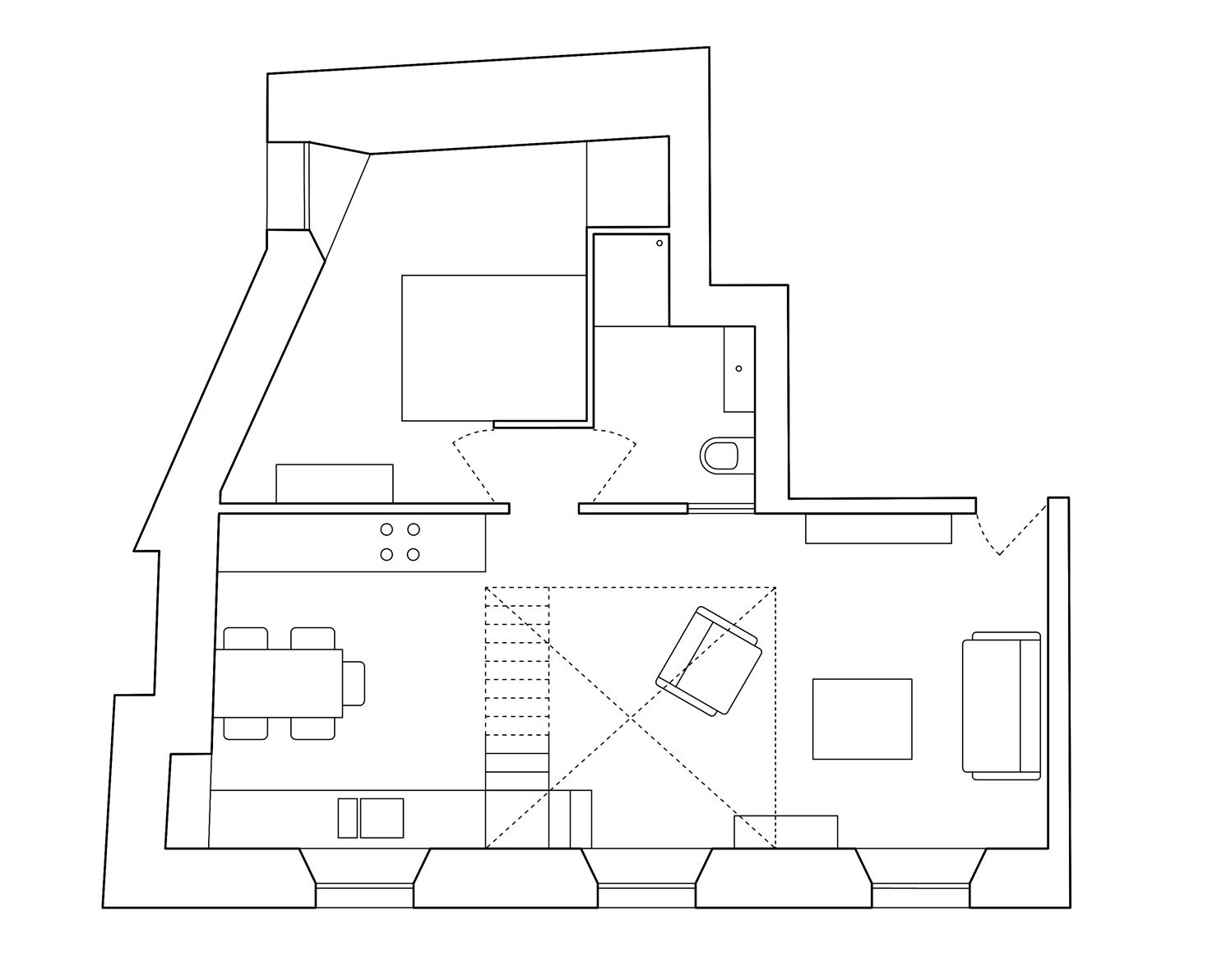
Création d’un duplex à Rennes

C’est en intégrant une partie des greniers de l’immeuble que nous avons pu imaginer un duplex. L’objectif était simple : créer un espace de vie ouvert et lumineux. Pour cela, nous avons dessiné un espace épuré en double hauteur dans lequel sont suspendus deux volumes abritant les espaces de nuit. Leur traitement en bois permet de mettre valeur l’effet de suspension et de hauteur.

Localisation/ Rennes

Mission / Complète

Commande / Privée

État / Livré

Année / 2016

Images / ©Jeremias Gonzalez

Vue intérieure. Création d'un duplex à Rennes.
Escalier et mansarde. Transformation en duplex à Rennes.
Vue intérieure. Création d'un duplex à Rennes.
Vue du salon. Transformation en duplex à Rennes.
A1403 - PLANCHE GRAPHIQUE-2
A1403 - PLANCHE GRAPHIQUE-3
A1403 - PLANCHE GRAPHIQUE-1
A1403 - PLANCHE GRAPHIQUE-4
Vue de l'appartement existant. Création d'un duplex à Rennes.